Student Clinic made with Revit & AutoCAD

- ROLE

Architect, Draftsperson


- FOR

Minneapolis Community and Technical College


- DATE

05/11/2022


- TYPE

Architecture


Final project wherein a student clinic must be designed around certain parameters, including square footage requirements. First semester project for Revit 1, second semester AutoCAD.

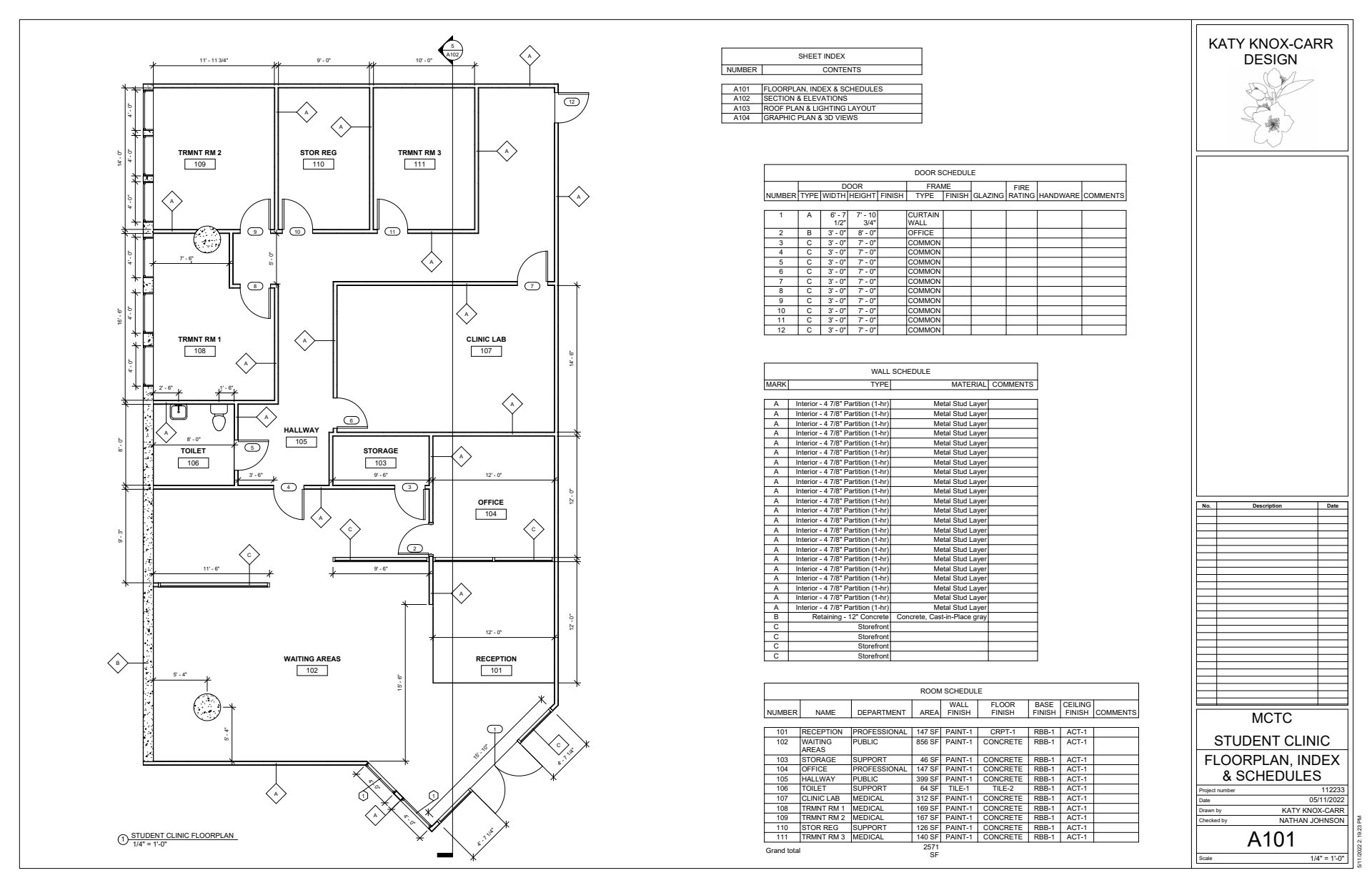
Revit complete sheet set

3D View 1

3D View 2

3D Aerial View

3D Roof View

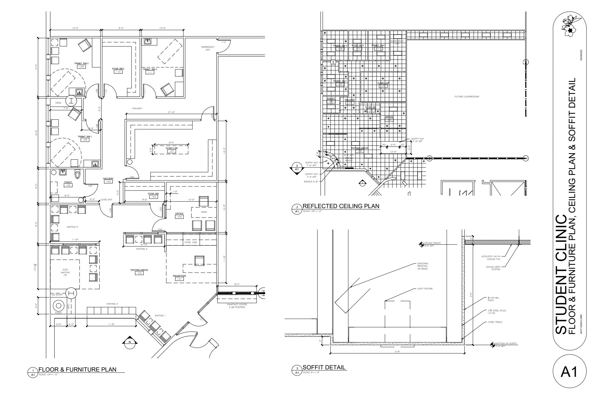
AutoCAD designed and created Floorplan with furniture layout, and Reflected ceiling plan, & Soffit detail.