Katy Knox-Carr Design
Portfolio
About
Recreation of The Hooper House- Modern Architecture Study using Revit
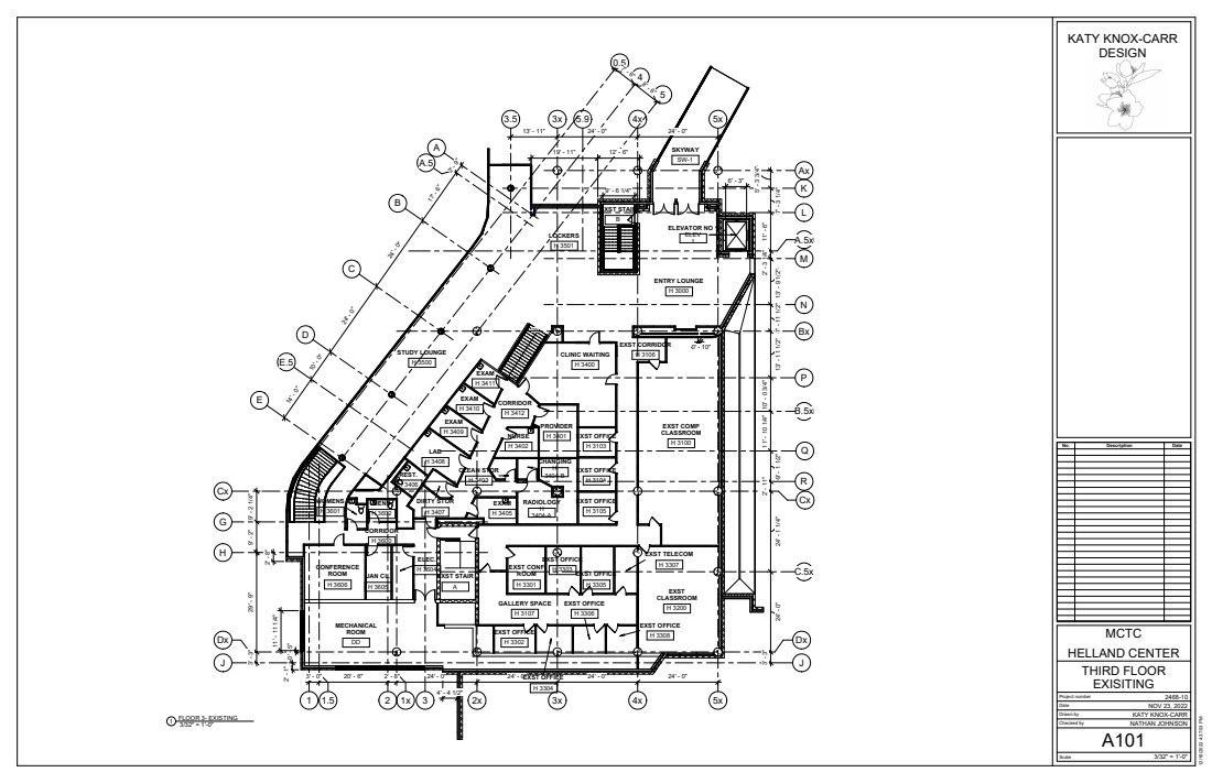
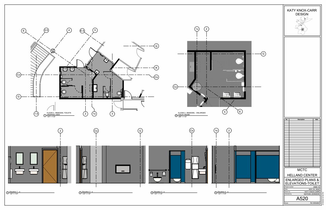
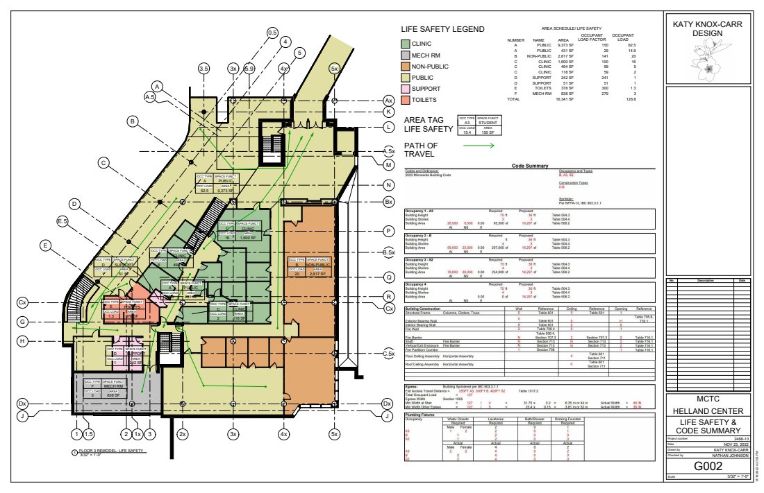
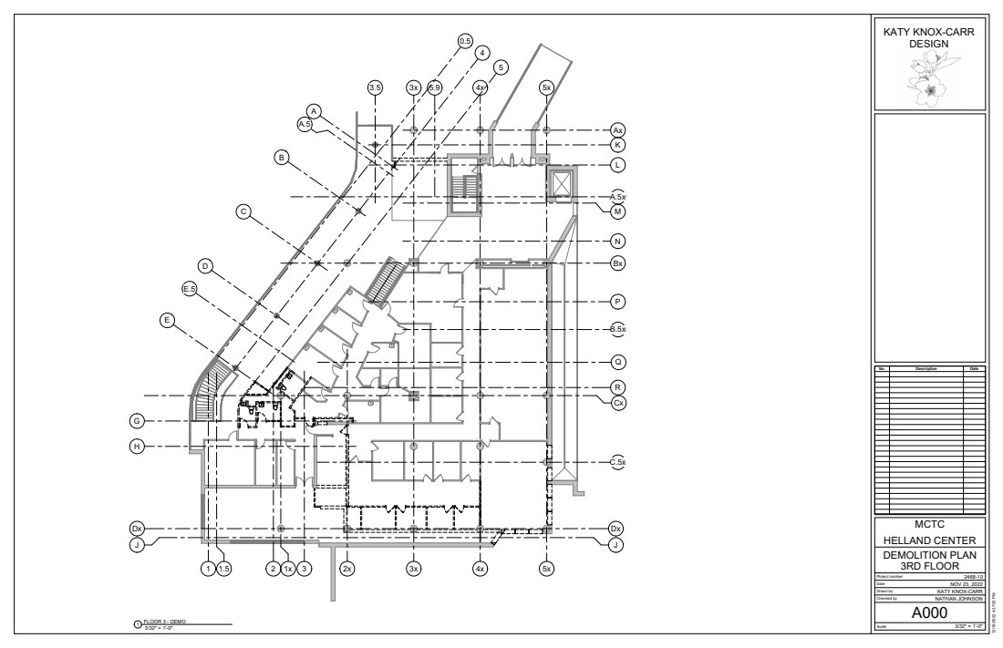
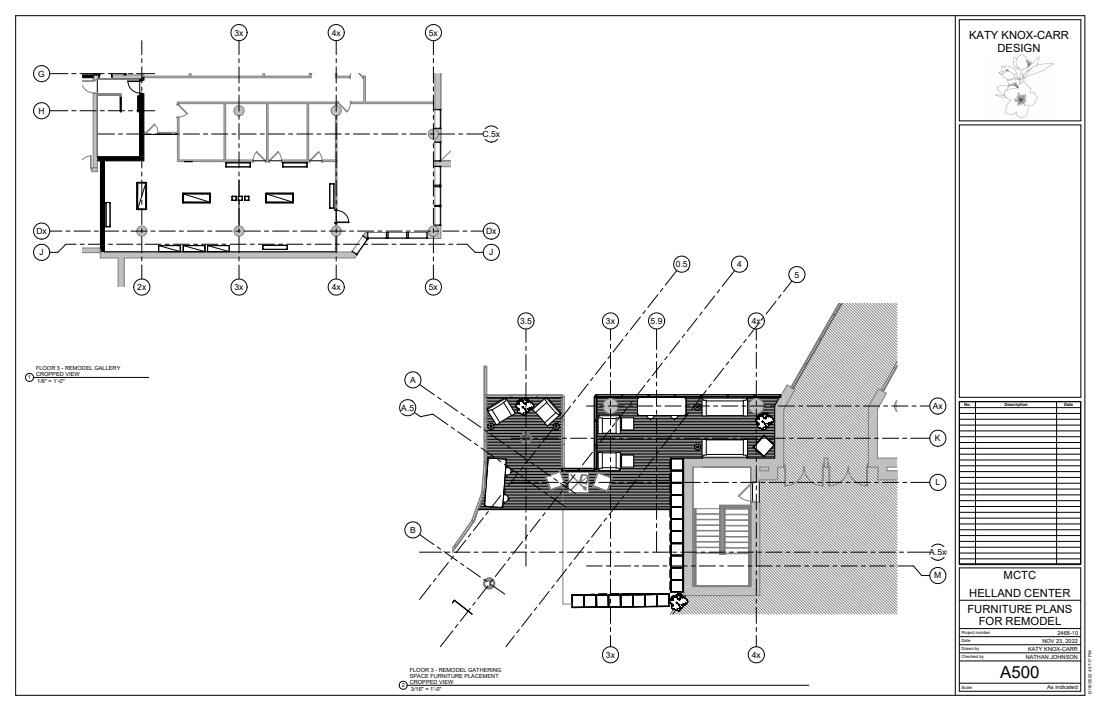
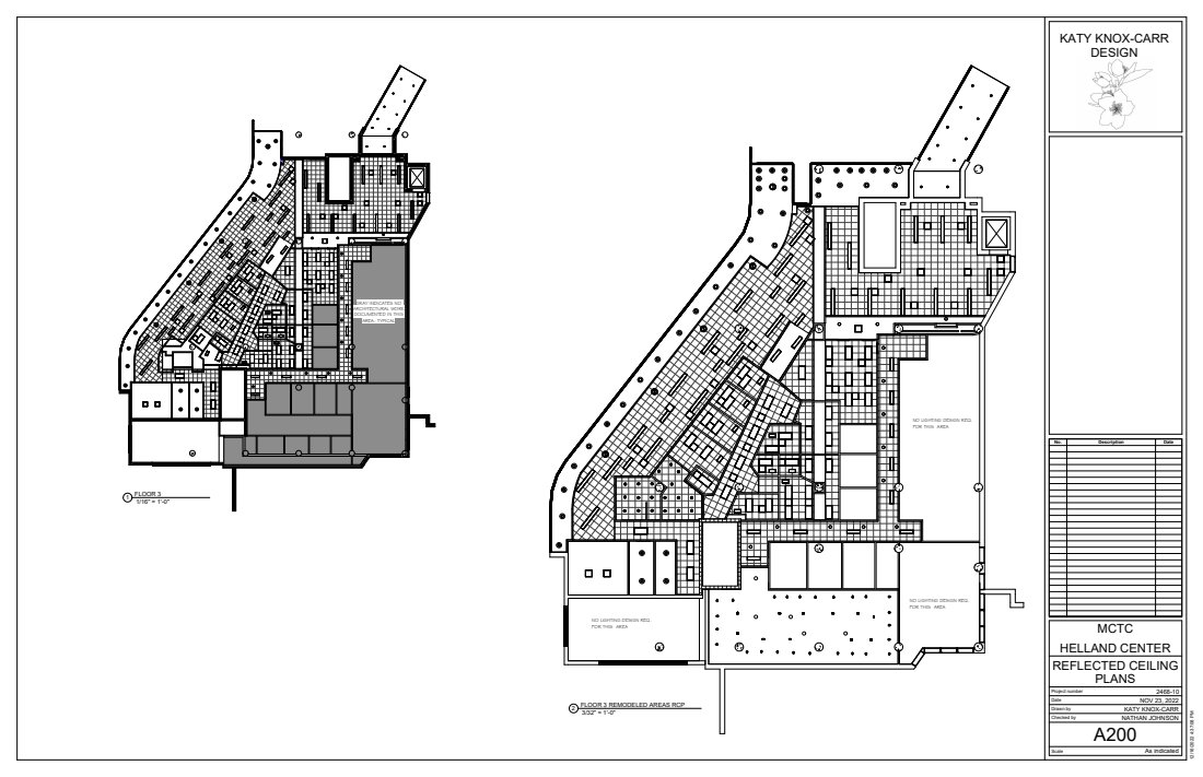
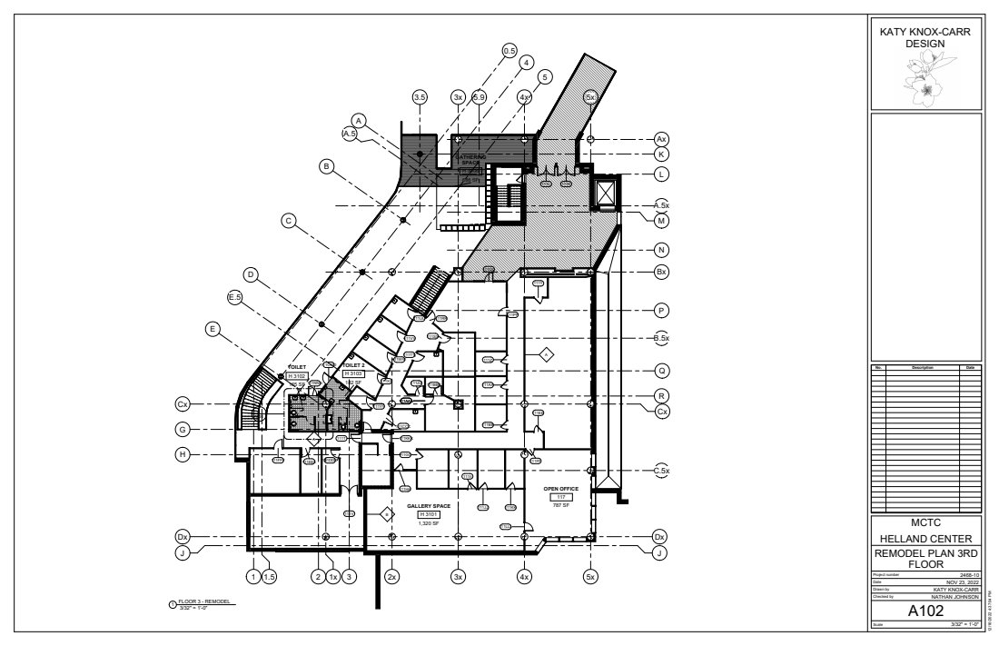
Revit Remodel of the Helland Center
Student Clinic made with Revit & AutoCAD
Office Warehouse Full Sheet Set in AutoCAD & Revit
AutoCAD Architectural Drafting 2021
Illustration
Holiday Urban Outfitters
Spring Urban Outfitters
Back to School Urban Outfitters
Visual Merchandising for Target
Social Media for Air Repair
Visual Merchandising for Ruti
Styling
Mark Hopkins Window Displays
The Wreath Project
Remodel of the Third Floor of the Helland Center at MCTC