AutoCAD Architectural Drafting 2021

- ROLE

AutoCAD Designer and Drafter


- FOR

Minneapolis Community and Technical College


- DATE

Fall 2021-current


Architectural drawings made in AutoCAD while pursuing an Associates in Architecture and VR Rendering at MCTC in Minneapolis Minnesota.

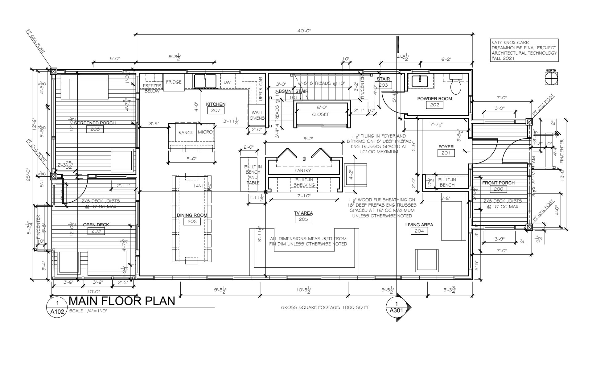
Dreamhouse Main Floorplan. Self Designed, Drafted. 2021

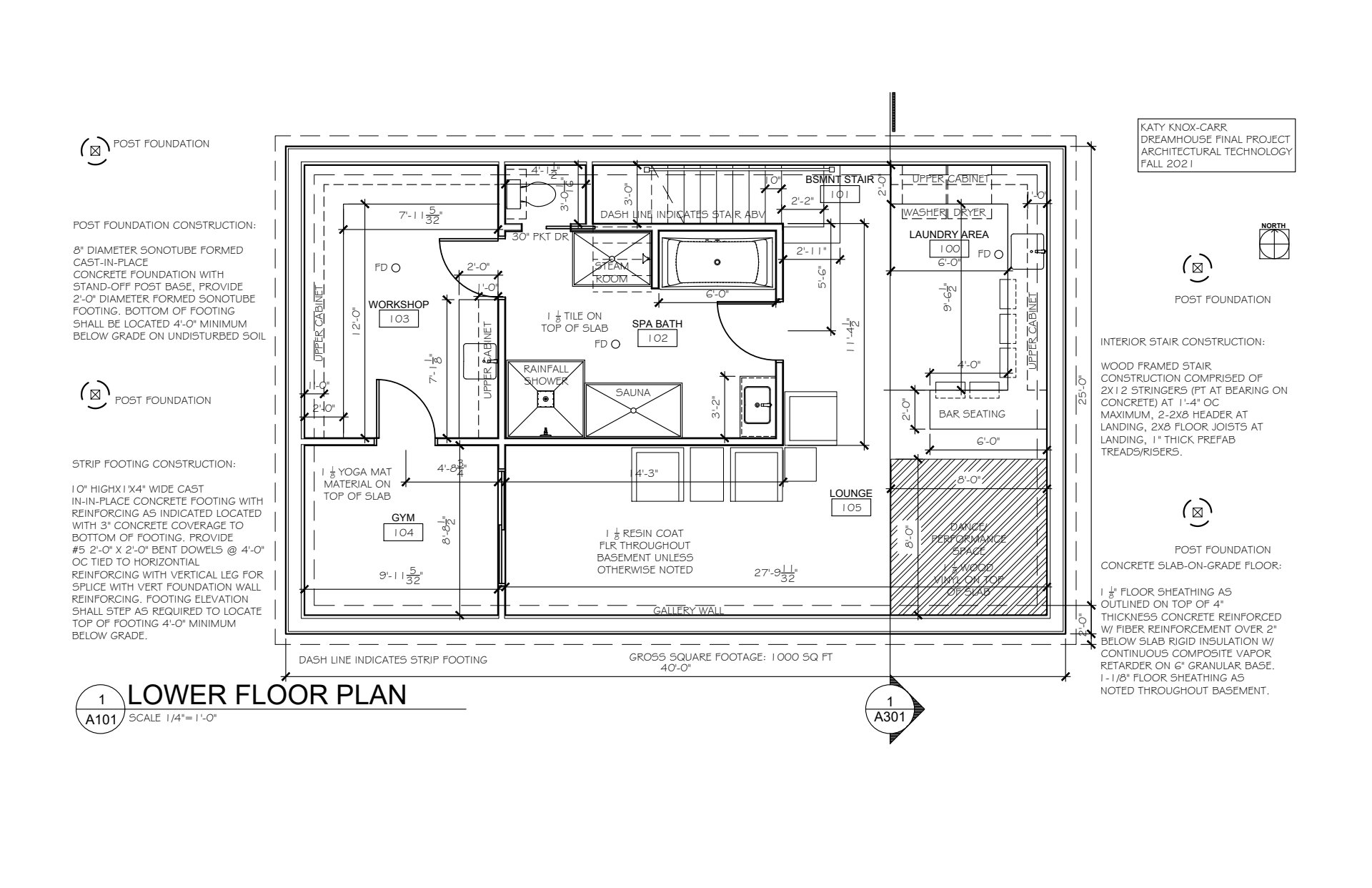
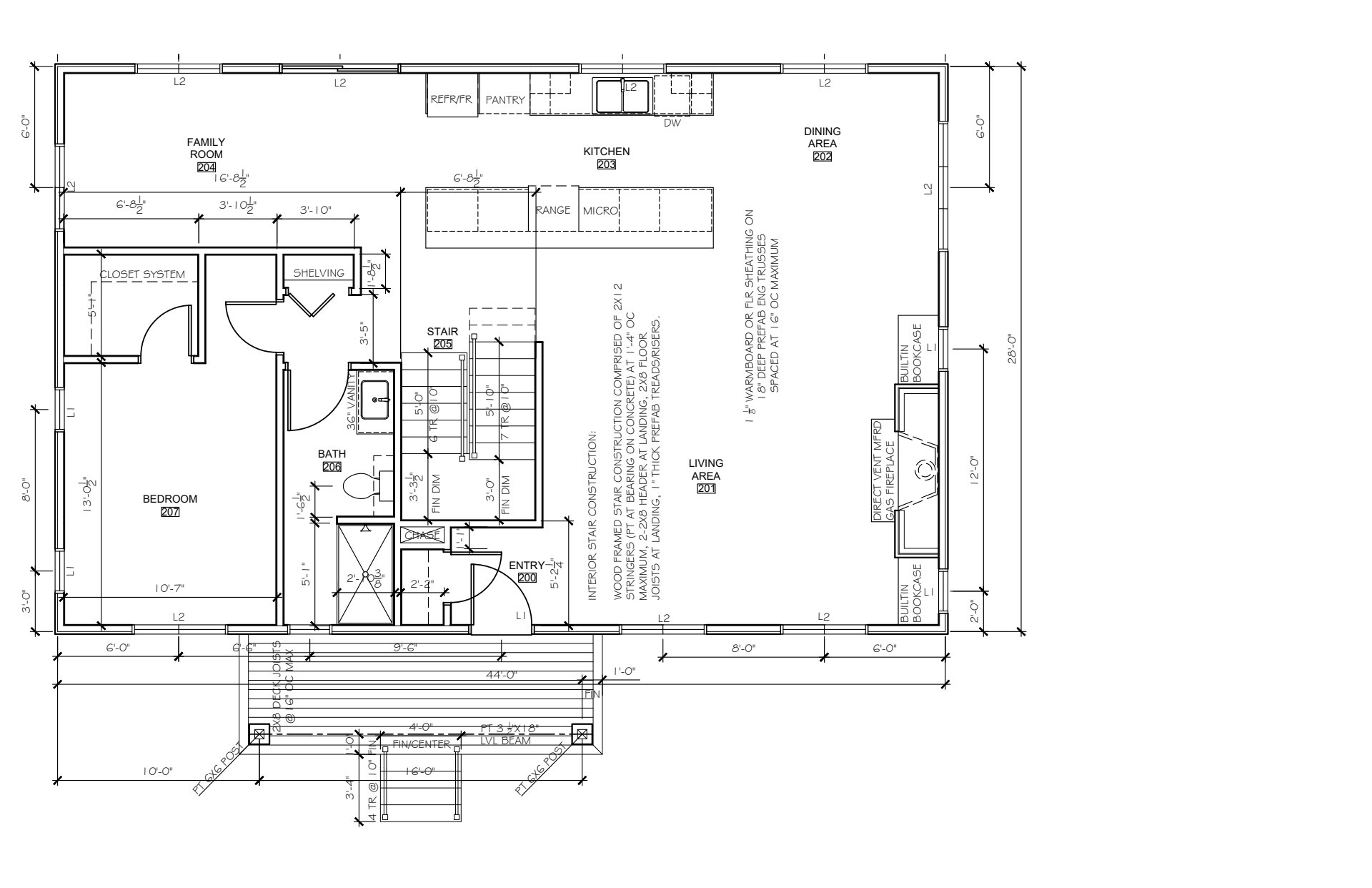
Dreamhouse Lower Floorplan. Self Designed, Drafted. 2021

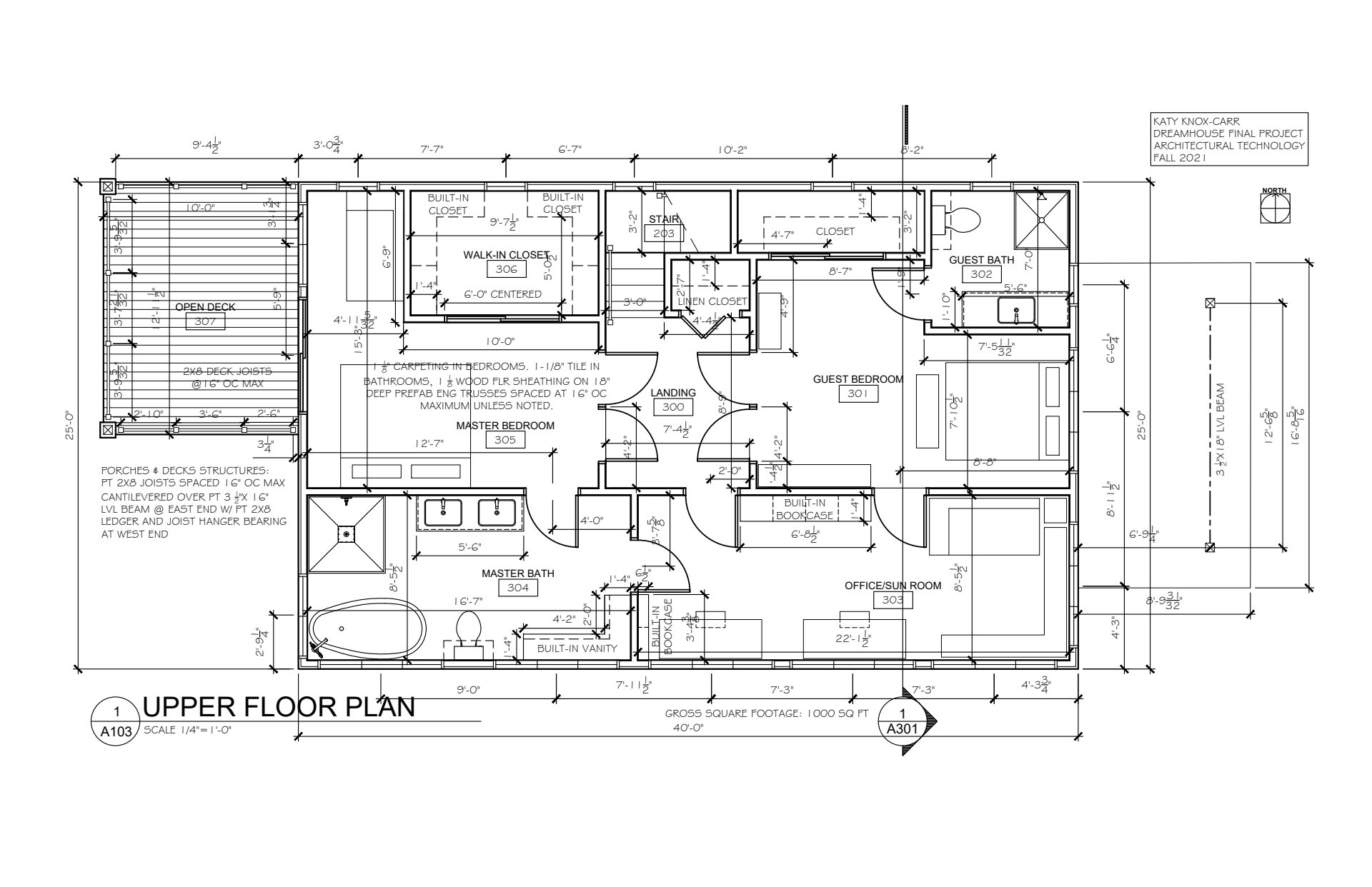
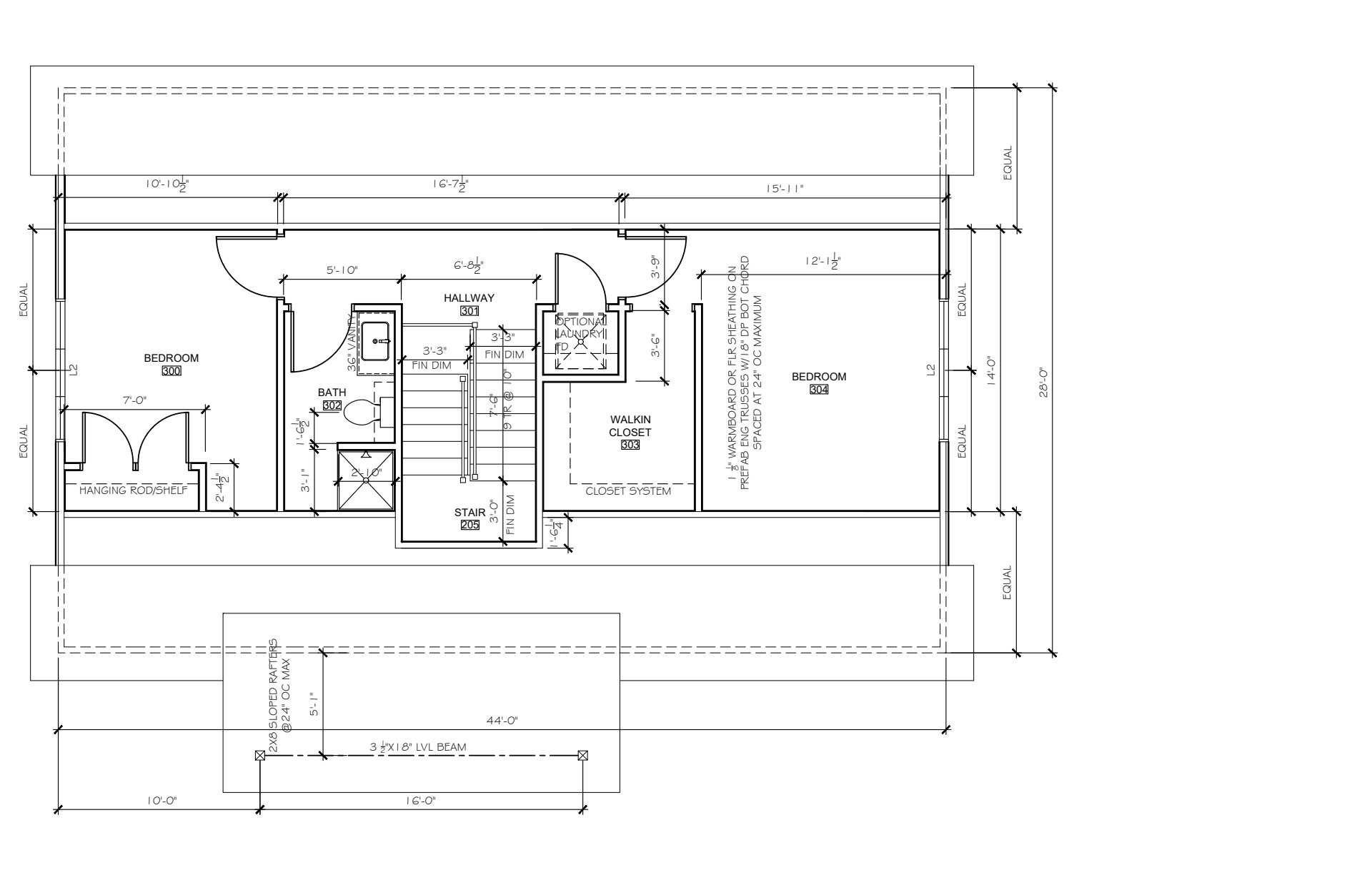
Dreamhouse Upper Floorplan. Self Designed, Drafted. 2021

Dreamhouse East Elevation. Self Designed, Drafted. 2021

Dreamhouse North Elevation. Self Designed, Drafted. 2021

Dreamhouse South Elevation. Self Designed, Drafted. 2021

Dreamhouse West Elevation. Self Designed, Drafted. 2021

Dreamhouse Section. Self Designed, Drafted. 2021

Dreamhouse Section & Details. Self Designed, Drafted. 2021

Bungalow Main Level Floor Plan. 2021

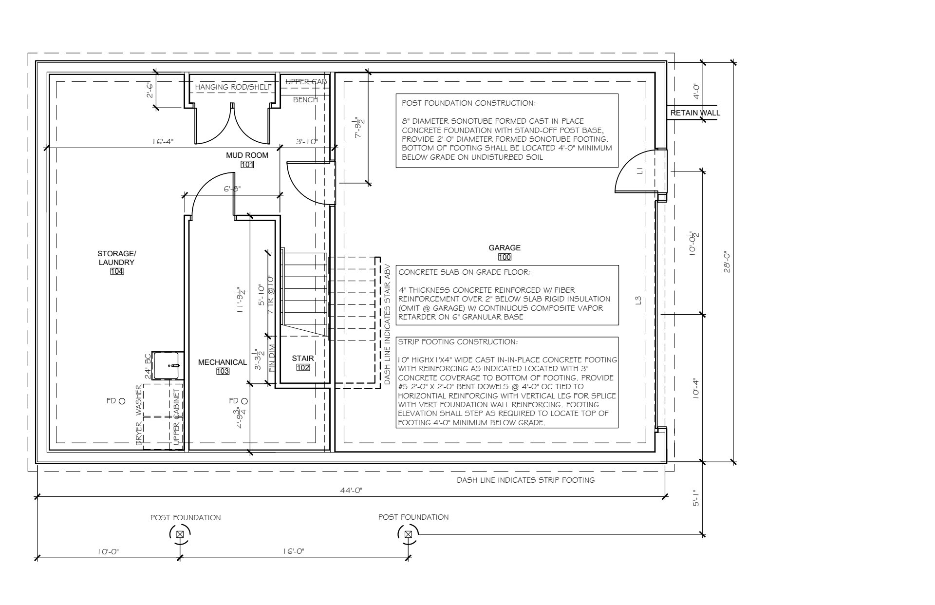
Bungalow Lower Level Floor Plan. 2021

Bungalow Upper Level Floor Plan. 2021

Bungalow East Elevation. 2021

Bungalow South Elevation. 2021

Bungalow West Elevation. 2021

Bungalow North Elevation. 2021

Bungalow Wall Section & Details. 2021

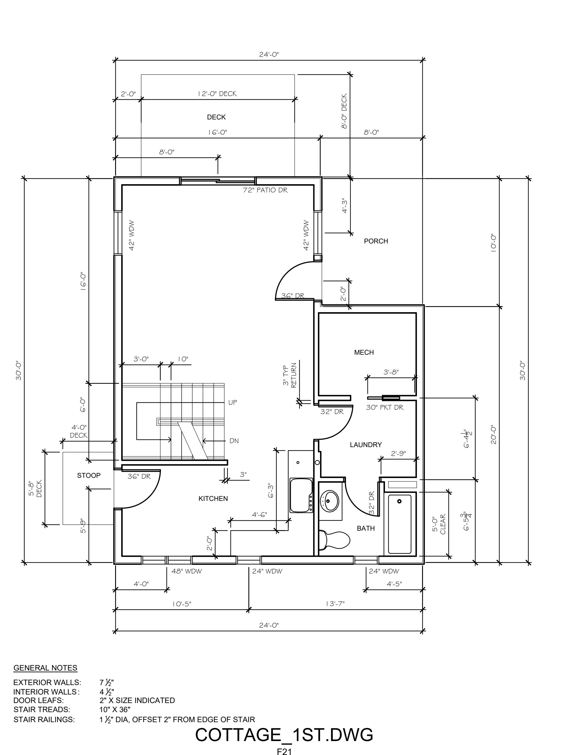
Cottage Main Floor Plan. 2021

Cottage Upper Floor Plan. 2021

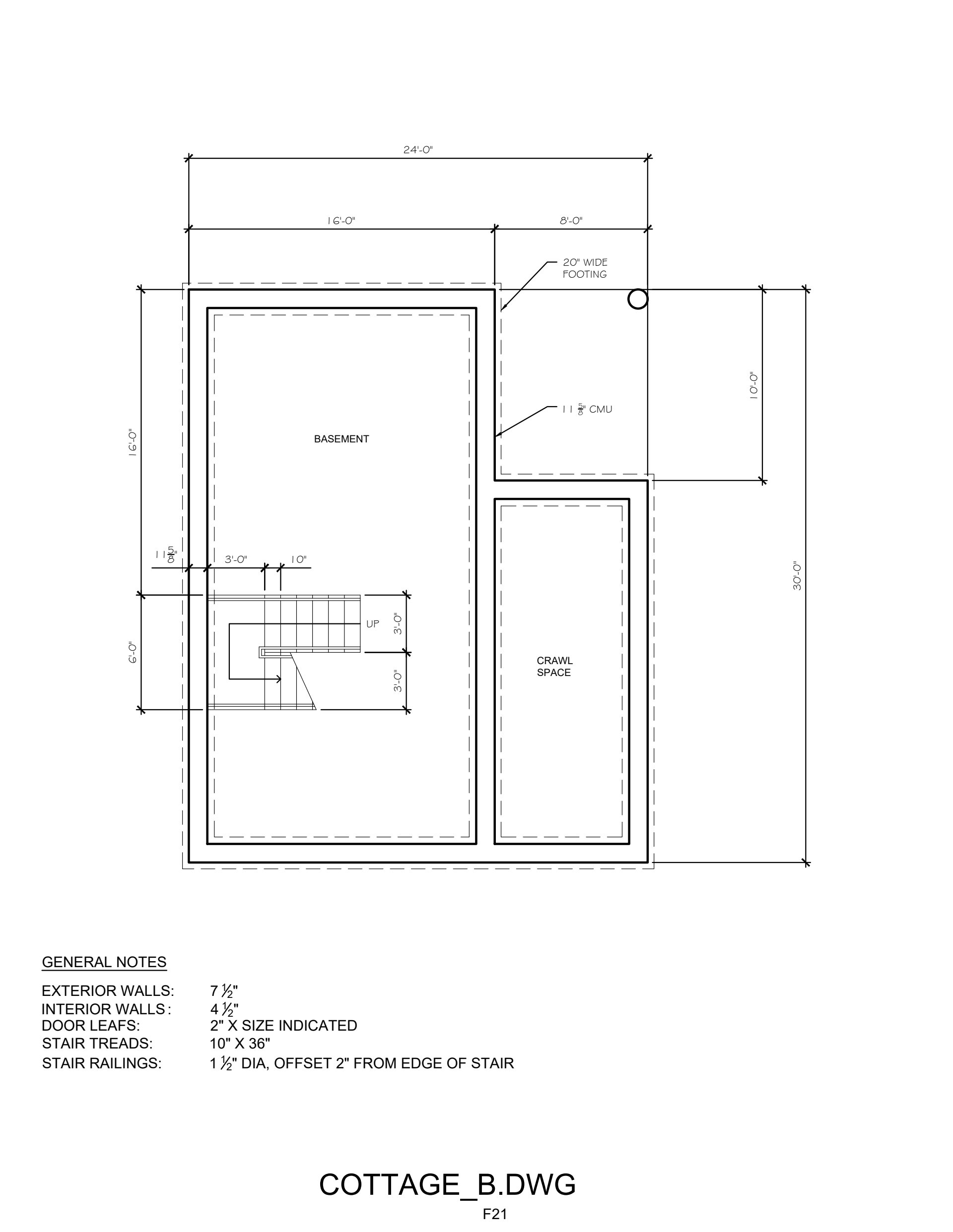
Cottage Lower Floor Plan. 2021

Cottage Elevations. 2021

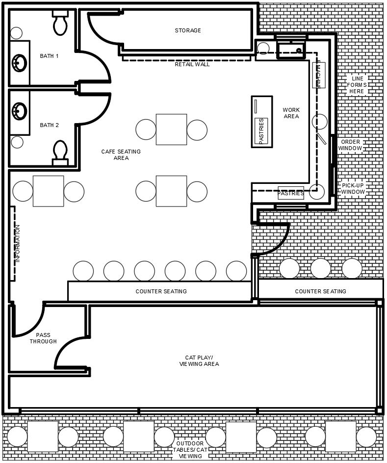
Cat Cafe Redesign. Self Designed & Drafted. 2021